
Citi Ventures Lab
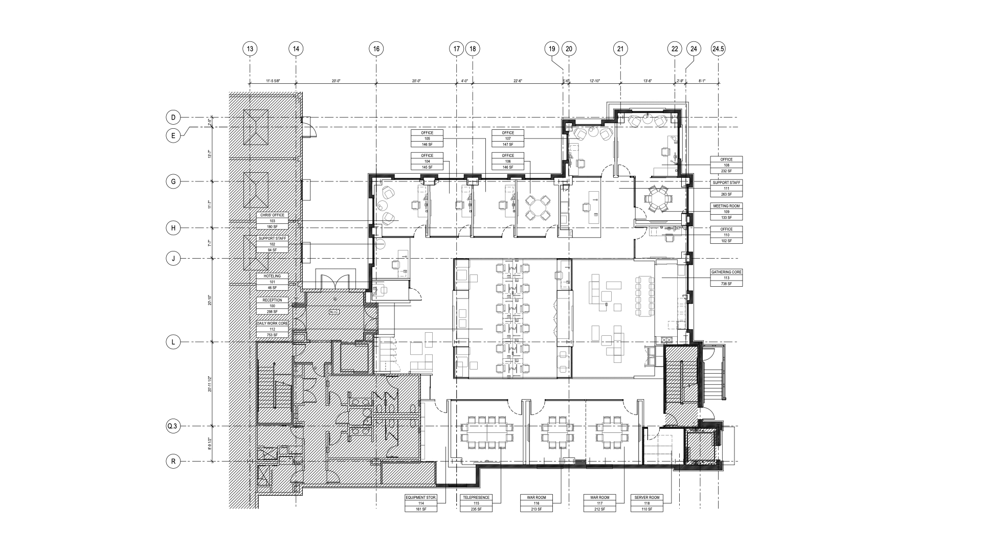
In 2010, the Citi Ventures group relocated their 20-person team from New York City to Silicon Valley. The new location is a 5,000 sf space, part of a mixed-use development in Palo Alto. The highly collaborative workspace focuses on a central work core augmented by a gathering space, open kitchen, war rooms, and breakout spaces.
Continuous glass around the perimeter spaces allows natural light to extend through the workspace, complimented by a warm material palette that includes a reclaimed wood ceiling, fabric-wrapped acoustical panel walls, and natural concrete floors.
The Citi Ventures Lab earned LEED Gold certification.
Continuous glass around the perimeter spaces allows natural light to extend through the workspace, complimented by a warm material palette that includes a reclaimed wood ceiling, fabric-wrapped acoustical panel walls, and natural concrete floors.
The Citi Ventures Lab earned LEED Gold certification.
Project Team
Eight Inc.
Scott Smardo
Lucinda Tay
Lighting Design: WSP
Acoustical Consultant: Salter
Audiovisual: Salter